Оставьте свой телефон и мы свяжемся с вами!
Или позвоните нам по номеру:
+7 (968) 557-30-40
Нажимая на кнопку, вы соглашаетесь с политикой обработки персональных данных
Черновые работы
Чёрновые работы являются неотъемлемой частью любого строительного проекта. Это этап, который закладывает основу для последующих процессов, и от его правильного выполнения зависит не только качество всего строительства, но и долговечность конечного результата. На данном этапе особое внимание уделяется подготовке пространства, обеспечению необходимых условий для монтажа и технологии дальнейших отделочных работ.
Наши проекты:
ЖК Новочерёмушкинская-17
ЖК SILVER FOUNTAIN - 3
ЖК SILVER FOUNTAIN - 2
ЖК SILVER FOUNTAIN - 1
ЖК Огни
ЖК Balchug Viewpoint
Первым шагом в выполнении черновых работ является создание чёткой схемы и плана будущего строительства. Архитектурные чертежи и технические спецификации помогут точнее определить, какие материалы и технологии будут использоваться. На этом этапе также проводится геодезическая подготовка участка, которая позволяет избежать проблем с уровнем и уклоном, что в дальнейшем может привести к нарушениям в конструкции.
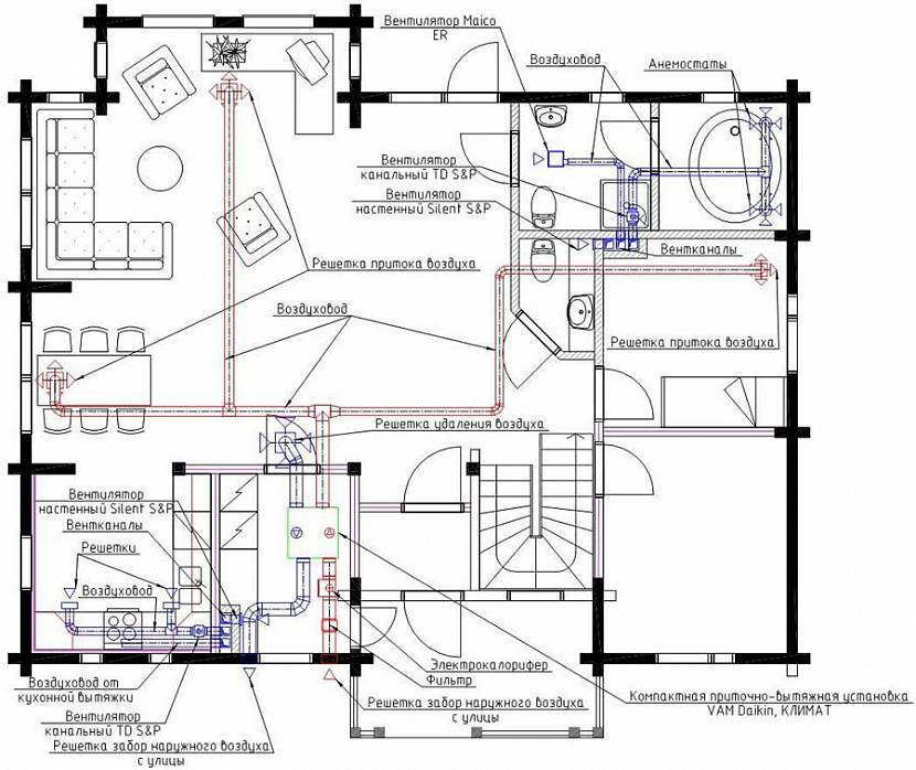
Под черновыми работами подразумеваются основные строительные операции, включая выполнение фундаментов, возведение стен, перекрытий, а также прокладку инженерных коммуникаций. Важно отметить, что чёрновые работы являются основой, на которой будет строиться дальнейшая отделка и функциональность помещения. Именно поэтому к их выполнению необходимо подходить с особой тщательностью и профессионализмом.
Одной из ключевых задач при проведении чёрновых работ является укладка фундамента. Это тот элемент, который, по сути, принимает на себя всю нагрузку здания и обеспечивает его стабильность. Выбор типа фундамента зависит от многих факторов, включая тип почвы, уровень грунтовых вод и массу будущего строения. Как правило, фундаменты подразделяются на свайные, ленточные и плитные, каждый из которых имеет свои достоинства и недостатки.
Ремонт без стресса? Мы можем это сделать!
Оставьте свои контакты: